为进一步推进鄂南民居特色风貌的有序发展,规范村镇个人住宅建设,弘扬地域建筑文化,改善人居环境质量,引导咸宁市村镇个人住宅向“选址规范化、布局合理化、风貌特色化”的方向迈进,解决目前村镇建设中“有新房无新村、有新村无新貌”和个人住宅布局不合理、形态单一、风格缺失等突出问题,促使村镇建设尊重自然、顺应自然,让居民“望得见山、看得见水、记得住乡愁”,咸宁市城乡规划局组织了由专家领衔、以规划建筑等相关设计单位为技术支撑的团队,编撰了《咸宁市村镇个人住宅建筑设计图集》(以下简称该图集)。
该图集共编制村镇个人住宅设计方案80个,以鄂南民居特色风格为主题,兼顾个人建房的地域性、多样性、安全性和经济实用性等实际需求,具体为:
一、特色类方案24个。分别以赤壁市和嘉鱼县、咸安区、通山县、崇阳县和通城县等四个片区的古民居为本源进行风格演绎,为各片区提供了6个特色性设计方案。
二、综合类方案21个。为满足村民对不同风格建筑的爱好需求,创作了荆楚派风格(4个)、简中式风格(13个)、简欧式风格(4个)等代表性设计方案。
三、整治类方案20个。落实“城市修补”理念,创作了“城市型”整治方案5个(针对城中村)、“集镇型”整治方案10个(以特色小镇和幕阜山旅游公路沿线等为样本)、“乡村型”整治方案5个(针对村庄整治需求);
四、搬迁类方案15个。结合异地扶贫和重大项目拆迁还建等难点工作需要,扶贫类方案6个、还建类方案9个(其中“一户一基”模式6个、“整体上楼”模式3个)。
现将该图集中住宅平面和外型方案进行公示,并将相关事宜说明如下:
一、公示目的
1、广泛征求社会各界对图集中住宅平面和外型方案的修改、完善意见。
2、通过投票方式征集10个最受欢迎方案。
二、联系方式
1、联系人:余建平15872804156
2、电话:0715-8066596
3、邮箱:546756309qq@.com
4、点击http://www.xncg.gov.cn:8088/
或http://cn.mikecrm/pUWvlm8提出你的意见或建议
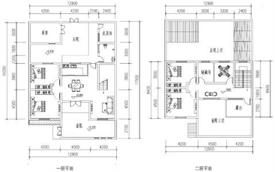
方案02A
■设计说明
特色民居-3开间-2层
适用地区:咸安区、风景区、历史文化名村名镇、传统村落、古民居风貌控制区等。
总造价:18.5万
占地面积:117平方米
建筑面积:185平方米
建筑结构:砖混结构
■建筑外装修主要材料
推荐青色布瓦(屋面色彩A)、白灰粉刷、青砖饰面等。
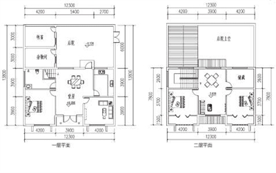
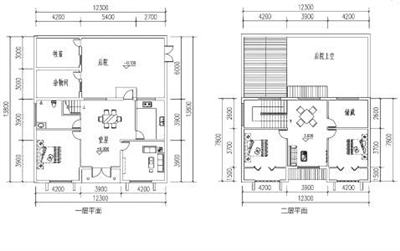
方案06
■设计说明
特色民居-3开间-2层
适用地区:咸安区、风景区、历史文化名村名镇、传统村落、古民居风貌控制区等。
总造价:18.5万
占地面积:123平方米
建筑面积:217平方米
建筑结构:砖混结构
■建筑外装修主要材料
推荐青色布瓦、白灰粉刷、青砖饰面、仿木铝合金栏杆等。









