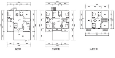
方案43
■设计说明
民居-3开间-3层
适用地区:湖北省咸宁市
总造价:25万
占地面积:197平方米
建筑面积:482平方米
建筑结构:砖混结构
方案45
■设计说明
民居-3开间-3层
适用地区:湖北省咸宁市
总造价:22万
占地面积:162平方米
建筑面积:438平方米
建筑结构:砖混结构
| 咸宁市村镇个人住宅建筑设计图集 |
| ||
| ||
| ||
|
方案43
■设计说明
民居-3开间-3层
适用地区:湖北省咸宁市
总造价:25万
占地面积:197平方米
建筑面积:482平方米
建筑结构:砖混结构
方案45
■设计说明
民居-3开间-3层
适用地区:湖北省咸宁市
总造价:22万
占地面积:162平方米
建筑面积:438平方米
建筑结构:砖混结构