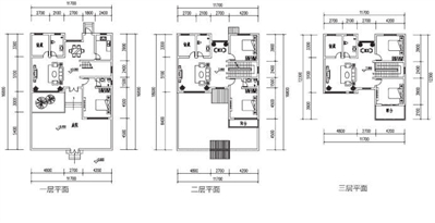
方案 26
■设计说明
民居-3开间-2层
适用地区:湖北省咸宁市
总造价:20万
占地面积:133平方米
建筑面积:266平方米
建筑结构:砖混结构
■建筑外装修主要材料
推荐青色布瓦、白灰粉刷、
青砖饰面、仿木铝合金栏杆等。
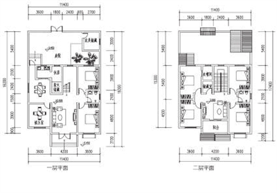
方案 37
■设计说明
民居-3开间-3层
适用地区:崇阳县与通城县
单栋造价:22万
占地面积:116平方米
建筑面积:340平方米
建筑结构:砖混结构
■建筑外装修主要材料
推荐青色布瓦、白灰粉刷、
青砖饰面、仿木铝合金栏杆等。
| 咸宁市村镇个人住宅建筑设计图集 |
| ||
| ||
| ||
|
方案 26
■设计说明
民居-3开间-2层
适用地区:湖北省咸宁市
总造价:20万
占地面积:133平方米
建筑面积:266平方米
建筑结构:砖混结构
■建筑外装修主要材料
推荐青色布瓦、白灰粉刷、
青砖饰面、仿木铝合金栏杆等。
方案 37
■设计说明
民居-3开间-3层
适用地区:崇阳县与通城县
单栋造价:22万
占地面积:116平方米
建筑面积:340平方米
建筑结构:砖混结构
■建筑外装修主要材料
推荐青色布瓦、白灰粉刷、
青砖饰面、仿木铝合金栏杆等。