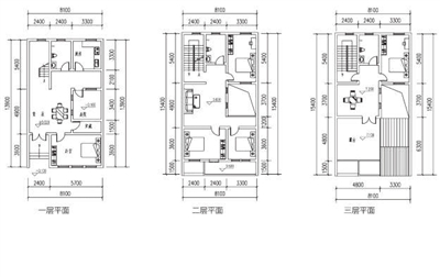
方案 17
■设计说明
特色民居-2开间-3层
适用地区:崇阳县与通城县、风景区、历史文化名村名镇、传统村落、古民居风貌控制区等。
总造价:14万
占地面积:111平方米
建筑面积:283平方米
建筑结构:砖混结构
■建筑外装修主要材料
推荐青色布瓦、白灰粉刷、
青砖饰面、仿木铝合金栏杆等。
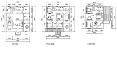
方案 18
■设计说明
特色民居-3开间-3层
适用地区:崇阳县与通城县、风景区、历史文化名村名镇、传统村落、古民居风貌控制区等。
总造价:21.5万
占地面积:130平方米
建筑面积:345平方米
建筑结构:砖混结构
■建筑外装修主要材料
推荐青色布瓦、白灰粉刷、
青砖饰面、仿木铝合金栏杆等。






